- Mythics-Villa - SPA Resorts Eigennutzung und Kapitalanlage mit sehr guter Auslastung!
Beschreibung:
Sie suchen eine spektakuläre Luxus-Villa, die Ihnen und Ihren Gästen ein Leben erster Klasse ermöglicht? Sie suchen eine stabile Wertanlage mit vorübergehender Eigennutzung?Diese knapp 300 m² große Villa ist ganz auf Privatsphäre ausgelegt, luxuriös gestaltet und bildet ein ruhiges Kontrastprogramm zum kunterbunten Inselleben. Freuen Sie sich auf ein schlichtes und einzigartiges Interieur, dass Ihnen Privatsphäre, Ruhe und Entspannung zudem Meerblicke und teilweise Zugang zum Strand ermöglicht.
Das Mythic Suites & Villas liegt auf einem 2,2 Hektar großen Gelände, 550 m vom Strand entfernt und bietet Platz für tropische Gärten und grüne Landschaften, um jedem Privatsphäre und Platz zu bieten. Zusätzlich können Sie alle Annehmlichkeiten des Resorts nutzen. Restaurant, Bar/Lounge, Snackbar, Massagen und eine hilfsbereite Rezeption.
Lagebeschreibung:
- Mythics-Villa - SPA Resorts liegt nur wenige Minuten von Grand Baie, dem beliebtesten Badeort der Insel, entfernt und bietet Ihnen eine außergewöhnliche Lage in unmittelbarer Nähe des Strandes. Lassen Sie die Magie des Ortes auf sich wirken, hier sind Ihre Schlüsselwörter von nun an Sanftheit des Lebens und Ruhe.In der Umgebung:
Strand von Pereybere - 18 Min.
Strand von Grand Baie - 16 Min.
Strand Trou aux Biches - 25 Min.
Turtle Bay - 20 Min.
Flughafen Sir Seewoosagur Ramgoolam Intl. (MRU) – 71 Min.
Ausstattung:
Energieausweis:
- Baujahr:
- 2022
- Energieausweis:
- es besteht keine Pflicht!
- wesentlicher Energieträger:
- Alternativ
- Baujahr lt. Energieausweis:
- 2022
Ausstattungsbeschreibung:
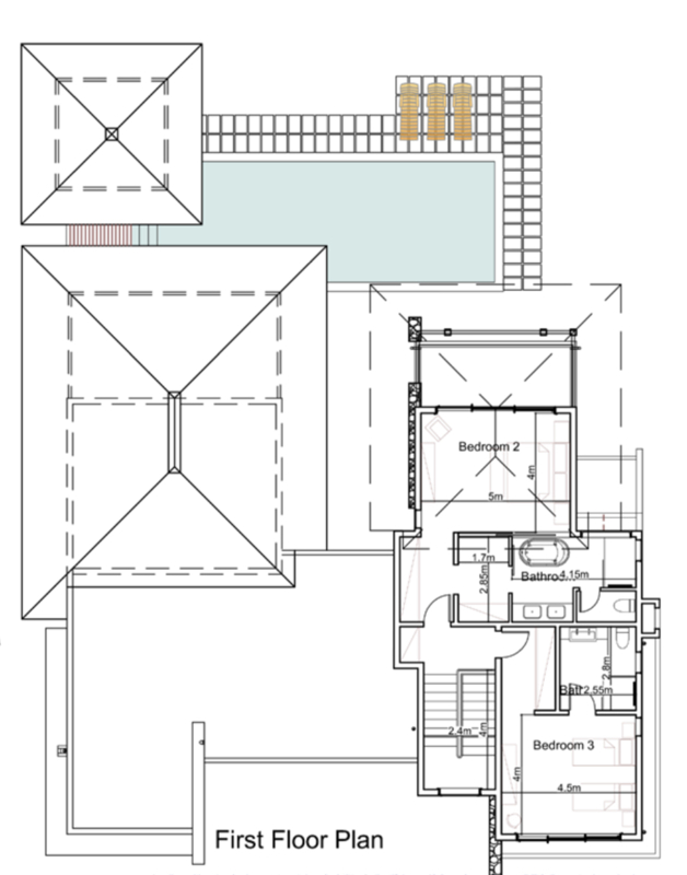
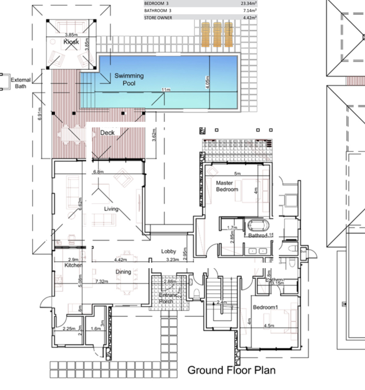
Treten Sie ein in die Lobby, vorbei an der Küche in den Wohn- und Essbereich und schließlich hinaus auf die Sonnenterrasse mit einem privaten Pool mit 54 m² und einem überdachten Pavillon. Das Master-Schlafzimmer begeistert mit raumhohen Fenstern und einem wunderschönen Bad mit direktem Zugang zur Poollandschaft. Die drei weiteren Schlafzimmer verfügen über ein eigenes Bad und einer eigenen Terrasse oder Balkon.Das Mythic Suites & Villas ist vollständig umzäunt und sicher und eine clevere Mischung aus zeitgenössischer Architektur und authentischer kreolischer Wohnatmosphäre. Genügend Parkplätze befinden sich auf dem Areal und stehen Ihnen zur Verfügung. Auch ein Fahrradverleih ist vor Ort.
Sonstige Angaben:
Der Preis für die Villa beträgt 1.290.000, - €, inklusive Möbel. Zum Preis hinzuzurechnen:- Transfersteuer (5%) + Notarkosten (0,6%) + Maklerkosten (5%).
Hausgeld: Ca. 600 Euro/Monat, alles inklusive (Wasser, Strom, Wartung des Swimmingpools, der Gärten usw.).
Sie können diese Villa selbst nutzen aber auch mit einer sehr guten Auslastung von beachtlichen 265 Tagen im Jahr vermieten. Mieteinnahmen pro Nacht zwischen 280 und 380 Euro je nach Saison. Die umfangreiche Organisation übernimmt die Verwaltung vor Ort.
Das Management vor Ort unterstützt Sie gerne bei einem Wohnortwechsel nach Mauritius so wie bei der renditestarken Vermietung!
Kontaktieren Sie mich bei Rückfragen. Ich habe auch auf dieser Anlage weitere Angebote in verschiedenen Preissegmenten.
Sie wollen mehr erfahren?
Wenn Sie uns eine Nachricht über das Kontaktformular senden, melden wir uns schnellstmöglich bei Ihnen:









